カルテット北白川
物件番号/1075914895
- 賃 料
- 61,000円
- 共益費
- 5,000円
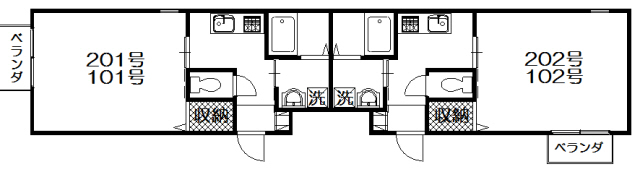
- 間取り
- 1K
- 専有面積
- 29.98㎡
- 築年月
- 平成26年3月 (築12年)
- 敷 金
- 60,000円
- 礼 金
- 150,000円
- 保証金
- -
- 解約引
- -
- 交 通
- 叡山電鉄叡山本線 茶山・京都芸術大学駅 徒歩20分
叡山電鉄叡山本線 元田中駅 徒歩20分
京阪鴨東線 出町柳駅 徒歩28分 - 所在地
- 京都市左京区北白川下池田町
おすすめポイント
【当社限定】光インターネット無料!全戸角部屋&防音良好RC造!
関連リンク
設備・周辺情報など
- 路線/駅
- 叡山電鉄叡山本線 茶山・京都芸術大学駅 徒歩20分
叡山電鉄叡山本線 元田中駅 徒歩20分
京阪鴨東線 出町柳駅 徒歩28分 - 所在地
- 京都市左京区北白川下池田町
- 内 訳
- 洋室9.4帖
- 種 別
- マンション
- 階数/階建
- 2階/2階建
- 向 き
- 南
- 構 造
- RC
- 現 況
- 居住中
- 入 居
- 2026年4月上旬
- 契約期間
- 2年
- 取引態様
- 専任媒介
- 駐車場
- 無
- 設備/条件
- 上水道
- 下水道
- 都市ガス
- 給湯
- オートロック
- 洗髪洗面化粧台
- バルコニー
- ガスキッチン
- シャワー
- エアコン
- 室内洗濯置場
- バス・トイレ別室
- 温水洗浄便座
- TVモニターホン
- 収納スペース
- インターネット対応
- 洗面所独立
- 駐輪場
- 角部屋
- コンロ2口以上
- 光ファイバー
- インターネット無料
- 保 険
- -
- 保証会社
- 利用必須 (学生)初回1万円のみ・(一般)初回総賃料40%更新1万円/1年
- 金銭備考
- 更新料: 1ヶ月
- 水道代: 2,000円
- 退去時清掃代29700円(税込) 24時間サポート2年16500円(税込)
- 周辺施設
- ファミリーマート白川通別当町店/390m (徒歩5分)
- フレスコ北白川店/535m (徒歩7分)
- 日本バプテスト病院(日本バプテスト連盟医療団)/412m (徒歩6分)
- 大学など
- 京都芸術大学 瓜生山キャンパス/627m (徒歩8分)
表示の情報と現況に差異がある場合は現況優先となります。

























