レピュート西村
物件番号/1075901415
- 賃 料
- 49,000円
- 共益費
- 3,000円
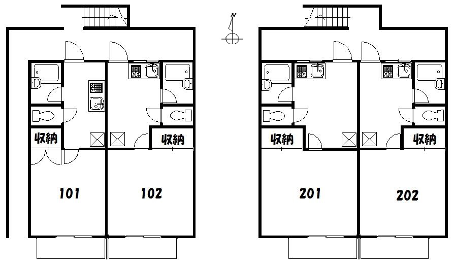
- 間取り
- 1K
- 専有面積
- 28.05㎡
- 築年月
- 平成5年9月 (築33年)
- 敷 金
- 1ヶ月
- 礼 金
- 1ヶ月
- 保証金
- -
- 解約引
- -
- 交 通
- 叡山電鉄叡山本線 元田中駅 徒歩19分
叡山電鉄叡山本線 茶山・京都芸術大学駅 徒歩19分
京阪鴨東線 出町柳駅 徒歩21分 - 所在地
- 京都市左京区北白川久保田町
おすすめポイント
【当社限定】ネット無料!キッチン広々&うれしい2口ガスコンロ設置可!
関連リンク
設備・周辺情報など
- 路線/駅
- 叡山電鉄叡山本線 元田中駅 徒歩19分
叡山電鉄叡山本線 茶山・京都芸術大学駅 徒歩19分
京阪鴨東線 出町柳駅 徒歩21分 - 所在地
- 京都市左京区北白川久保田町
- 内 訳
- 洋室8.5帖、K4.5帖
- 種 別
- ハイツ
- 階数/階建
- 2階/2階建
- 向 き
- 南
- 構 造
- 木造
- 現 況
- 居住中
- 入 居
- 2026年4月上旬
- 契約期間
- 2年
- 取引態様
- 専任媒介
- 駐車場
- 無
- 設備/条件
- 上水道
- 下水道
- 都市ガス
- 給湯
- フローリング
- CATV
- バルコニー
- ガスキッチン
- シャワー
- エアコン
- 室内洗濯置場
- バス・トイレ別室
- 収納スペース
- インターネット対応
- 駐輪場
- 角部屋
- コンロ2口以上
- 閑静な住宅街
- インターネット無料
- 保 険
- 加入要
- 保証会社
- 利用必須 (学生)初回1万円のみ・(一般)初回総賃料40%更新1万円/1年
- 金銭備考
- 更新料: 1ヶ月
- 水道代: 2,000円
- 退去時清掃代29700円(税込) 24時間サポート月額800円(税込)
- 周辺施設
- 京都市立北白川小学校/633m (徒歩8分)
- 京都市立近衛中学校/1607m (徒歩21分)
- ローソン北白川久保田店/268m (徒歩4分)
- フレスコ北白川店/702m (徒歩9分)
- 大学など
- 京都大学 吉田キャンパス/1155m (徒歩15分)
表示の情報と現況に差異がある場合は現況優先となります。







































